赤峰市人民政府
丨
赤峰市自然资源局
登录/注册
用户中心
部门网站导航
市发展和改革委员会
市教育局
市科学技术局
市工业和信息化局
市公安局
市民政局
市司法局
市财政局
市人力资源和社会保障局
市自然资源局
市生态环境局
市住房和城乡建设局
市交通运输局
市水利局
市农牧局
市商务局
市文化和旅游局
市卫生健康委员会
市退役军人事务局
市应急管理局
市审计局
市市场监督管理局
市统计局
市林业和草原局
市国防动员办公室
市医保局
市信访局
市供销合作社
无障碍浏览
搜本站
搜本站
搜平台
首页
新闻中心
政务公开
办事服务
互动交流
党务公开
专题专栏
首页
>
政务公开
>
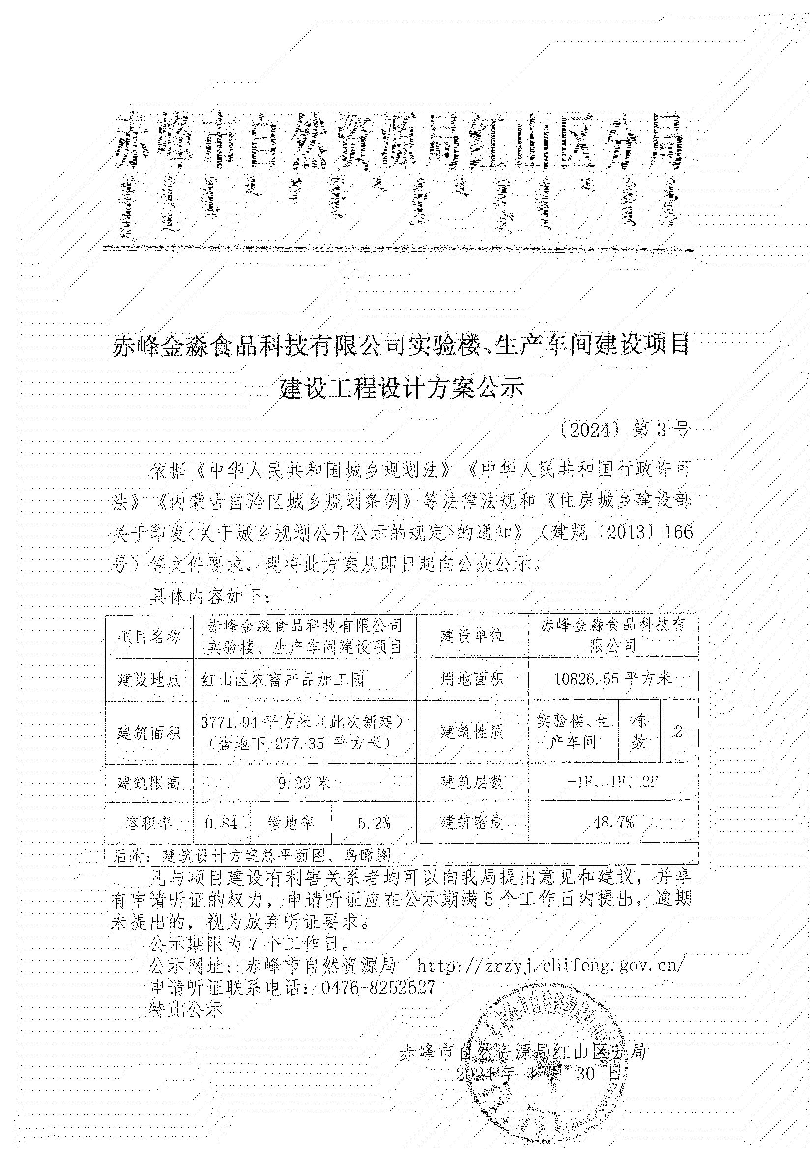
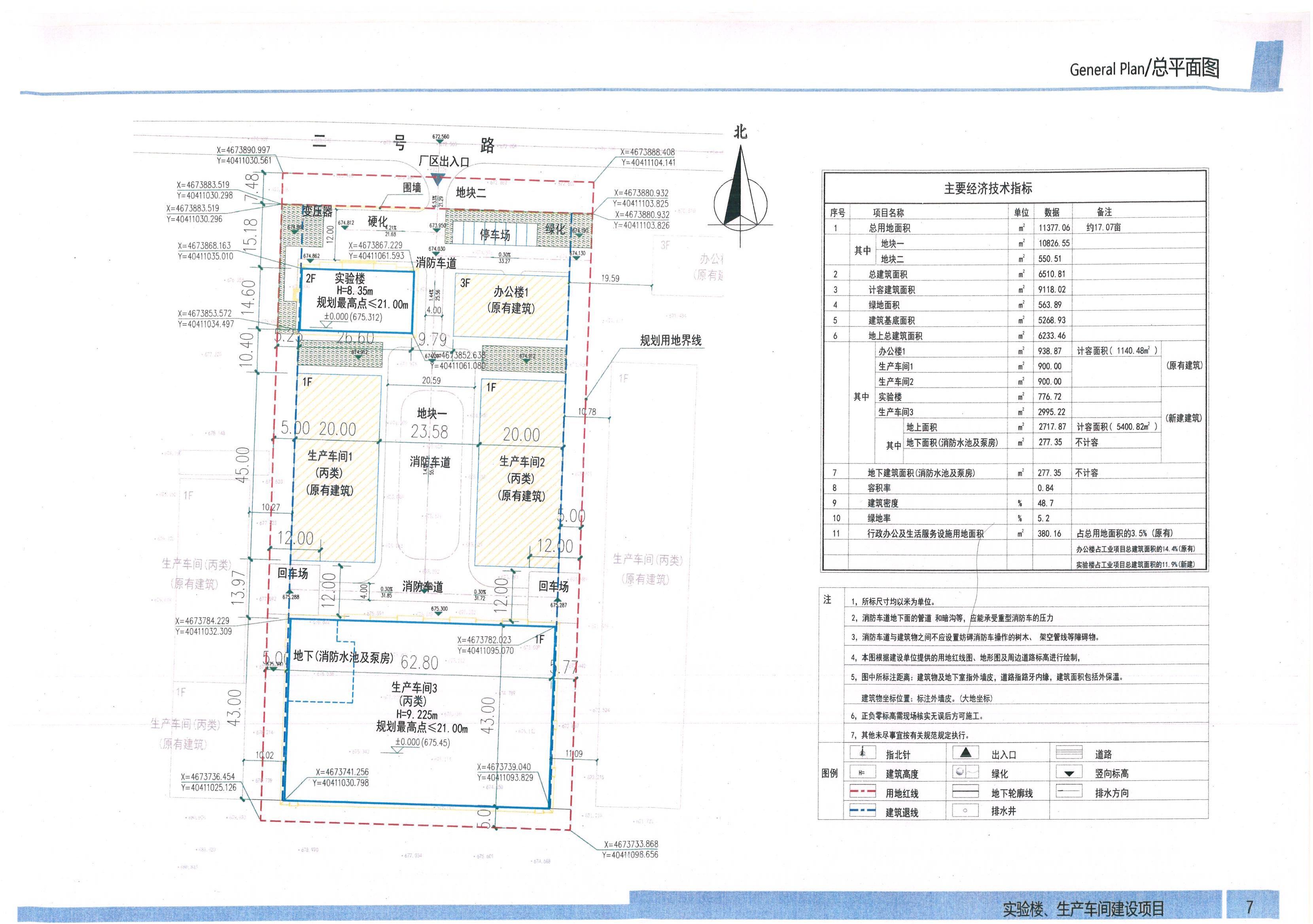
赤峰金淼食品科技有限公司实验楼、生产车间建设项目建设工程设计方案公示
赤峰金淼食品科技有限公司实验楼、生产车间建设项目建设工程设计方案公示
来源:赤峰市自然资源局红山区分局
发布时间:2024-02-01 10:01
字号:
大
中
小
赤峰金淼食品科技有限公司实验楼、生产车间建设项目建设工程设计方案公示
友情链接
丨
相关部门链接
内蒙古自治区自然资源厅
中国土地勘测规划院
中国地质调查局
自然资源部
盟市自然资源
阿拉善盟自然资源局
乌海市自然资源局
巴彦淖尔市自然资源局
鄂尔多斯市自然资源局
乌兰察布市自然资源局
锡林郭勒盟自然资源局
通辽市自然资源局
兴安盟自然资源局
呼伦贝尔市自然资源局
包头市自然资源局
呼和浩特市自然资源局
行业链接
中矿联地勘协会网
网站地图
网站声明
隐私声明
联系我们
主办单位:赤峰市自然资源局
管理:赤峰市自然资源局数据中心
蒙ICP备19002451号-1
网站标识码:1504000042
蒙公网安备 15040402000175号
地址:内蒙古赤峰市新城区玉龙大街64号
联系电话:0476-5891619 邮编:024000